Logo
Logo

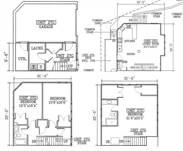
27 Marcella Street Boston, MA 02119

$4,700 /month

Overview

Bedroom

3

Bathroom

2.5

Type

Condominium

Parking

Ask of Landlord

Pets Allowed

Yes with Restrictions

Furniture

Ask of Landlord

Date Available

06/01/2026

Floor

1

Lease Option

Ask of Landlord

Rare end-unit townhouse available at 27 Marcella Street in coveted Fort Hill. This 4-level home offers a spacious and functional layout with abundant natural light from multiple exposures. The main living level features an open-concept living and dining area, ideal for both everyday living and entertaining, it also includes access to your own exclusive use deck! Third level provide well-separated bedroom spaces, perfect for privacy or a home office setup. Top-level primary suite has so many skylights that fill the space with natural light, complete with an ensuite bath for added privacy and comfort. Additional features include garage parking, in-unit laundry, and generous storage throughout. End-unit placement offers added privacy and a quiet setting. Conveniently located near the Orange Line, Southwest Corridor Park, Longwood Medical Area, and local restaurants and cafes. Easy access to downtown Boston. Condo-quality rental offering space, flexibility, and a prime Fort Hill location.

Amenities

Laundry

First Floor
In Building

Air Conditioning

Yes

Water Front

No

Unit Features

Pet Friendly
Range

Community Features

Deck - Composite
Public Transportation

How AFlat Works

1

Select Your Ideal house

Dive into our curated listings to pinpoint your perfect match. Our diverse selection caters to all preferences and lifestyles.

2

Initiate Your Application

Our digital application process is a breeze. Conveniently upload your documents remotely and jumpstart your path to approval.

3

Verification & Approval

Quickly validate your credential with our streamlined document review. We're committed to moving your through the process with ease.

4

Digitally Sign & Pay

Secure your new lease with a digital signature and take care of any initial payments through our safe online portal.

5

Effortless Move-in

Settle into your new space with peace of mind. We're here to assist every step of the way-just reach out!

Rent Calculator

Rental Cost

$4700

Security Deposit

$4700

Move In Cost

$9400

Property Details (Fees & Lease)

Lease Options

Rental Terms

Ask of Landlord

Term of Rental

12

Date Available

06/01/2026

Move in Fees

First Month Rent

Yes

Last Month Rent

Yes

Brokers Fee

$ 0

Security Deposit

$ 4,700

Other Fee

$ 0

Move in Requirements

References Required

No

Renters Insurance

No

Income to Rent

Ask of Landlord

Background Check

Not Required

Rent Fee Includes

Water

Sewer

Pet Policies

Pets Allowed

Yes with Restrictions

Pet Deposit

$ 0

Parking

Type

Ask of Landlord

Parking Fee

$ 0

Storage

Available

Ask of Landlord

Storage Fee

$ 0

Building and Construction

Floor

1

Total Square Feet Living

1710

Lead free Paint

No

Ratings

0/100

Walker's Paradise

0 /100

Walk Score®

0/100

Some Transit

0 /100

Transit Score®

0/100

Biker's Paradise

0 /100

Bike Score®

Agent/Office Information

flatworth001
View Profile

Apartment for rent

3 bd

2.5 ba

Rent price from

$4,700 / month

Rental Cost

$4,700

Security Deposit

$4,700

Move In Cost

$9,400