Logo
Logo

72 Baxter St Boston, MA 02127

$7,300 /month

Overview

Bedroom

4

Bathroom

2.5

Type

Single Family Residence

Parking

Ask of Landlord

Pets Allowed

Yes with Restrictions

Furniture

Ask of Landlord

Date Available

09/01/2026

Floor

1

Lease Option

Ask of Landlord

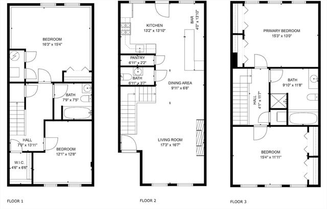
OPEN HOUSE FRIDAY 4/24 @ 5-6PM. Welcome to 72 Baxter St. - this very spacious and perfectly laid out single family home is looking for its next group of tenants to enjoy everything South Boston has to offer! As you enter the home, you are greeted by an extreme amount of living & dining space, highlighted by the center fireplace. On this floor you will find the large kitchen with updated Stainless Steel appliances, granite counters and a movable island/butcher cart. A half bath, large pantry closet and access to the exterior deck round out this floor. Upstairs you will find two large bedrooms, the in-unit washer & dryer and a full bath with two separate showers, great for roommates! In the lower level you will find the remaining two large bedrooms and second full bathroom. Each room has ample closet space. Central AC, Gas Heating, and 2 Deeded Driveway Spaces (tandem spaces). Within 1 block to bus stop that takes you to downtown Boston. Available 9/1.

Amenities

Laundry

In Unit

Air Conditioning

Yes

Water Front

No

Unit Features

Pet Friendly
Range

Community Features

Porch
Patio

How AFlat Works

1

Select Your Ideal house

Dive into our curated listings to pinpoint your perfect match. Our diverse selection caters to all preferences and lifestyles.

2

Initiate Your Application

Our digital application process is a breeze. Conveniently upload your documents remotely and jumpstart your path to approval.

3

Verification & Approval

Quickly validate your credential with our streamlined document review. We're committed to moving your through the process with ease.

4

Digitally Sign & Pay

Secure your new lease with a digital signature and take care of any initial payments through our safe online portal.

5

Effortless Move-in

Settle into your new space with peace of mind. We're here to assist every step of the way-just reach out!

Rent Calculator

Rental Cost

$7300

Security Deposit

$7300

Move In Cost

$14600

Property Details (Fees & Lease)

Lease Options

Rental Terms

Ask of Landlord

Term of Rental

12

Date Available

09/01/2026

Move in Fees

First Month Rent

Yes

Last Month Rent

No

Brokers Fee

$ 0

Security Deposit

$ 7,300

Other Fee

$ 0

Move in Requirements

References Required

No

Renters Insurance

No

Income to Rent

Ask of Landlord

Background Check

Not Required

Rent Fee Includes

Water

Sewer

Trash Collection

Laundry Facilities

Parking

Pet Policies

Pets Allowed

Yes with Restrictions

Pet Deposit

$ 0

Parking

Type

Ask of Landlord

Parking Fee

$ 0

Storage

Available

Ask of Landlord

Storage Fee

$ 0

Building and Construction

Floor

1

Total Square Feet Living

1940

Lead free Paint

No

Ratings

0/100

Walker's Paradise

0 /100

Walk Score®

0/100

Some Transit

0 /100

Transit Score®

0/100

Biker's Paradise

0 /100

Bike Score®

Agent/Office Information

flatworth001
View Profile

Apartment for rent

4 bd

2.5 ba

Rent price from

$7,300 / month

Rental Cost

$7,300

Security Deposit

$7,300

Move In Cost

$14,600