Logo
Logo

1439 Tremont St. Boston, MA 02120

$3,800 /month

Overview

Bedroom

1

Bathroom

1

Type

Apartment

Parking

Ask of Landlord

Pets Allowed

Yes with Restrictions

Furniture

Ask of Landlord

Date Available

07/01/2026

Floor

2

Lease Option

Ask of Landlord

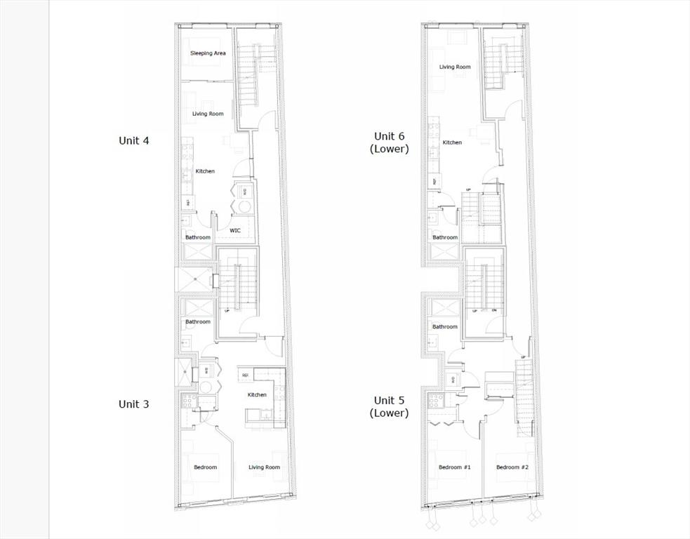
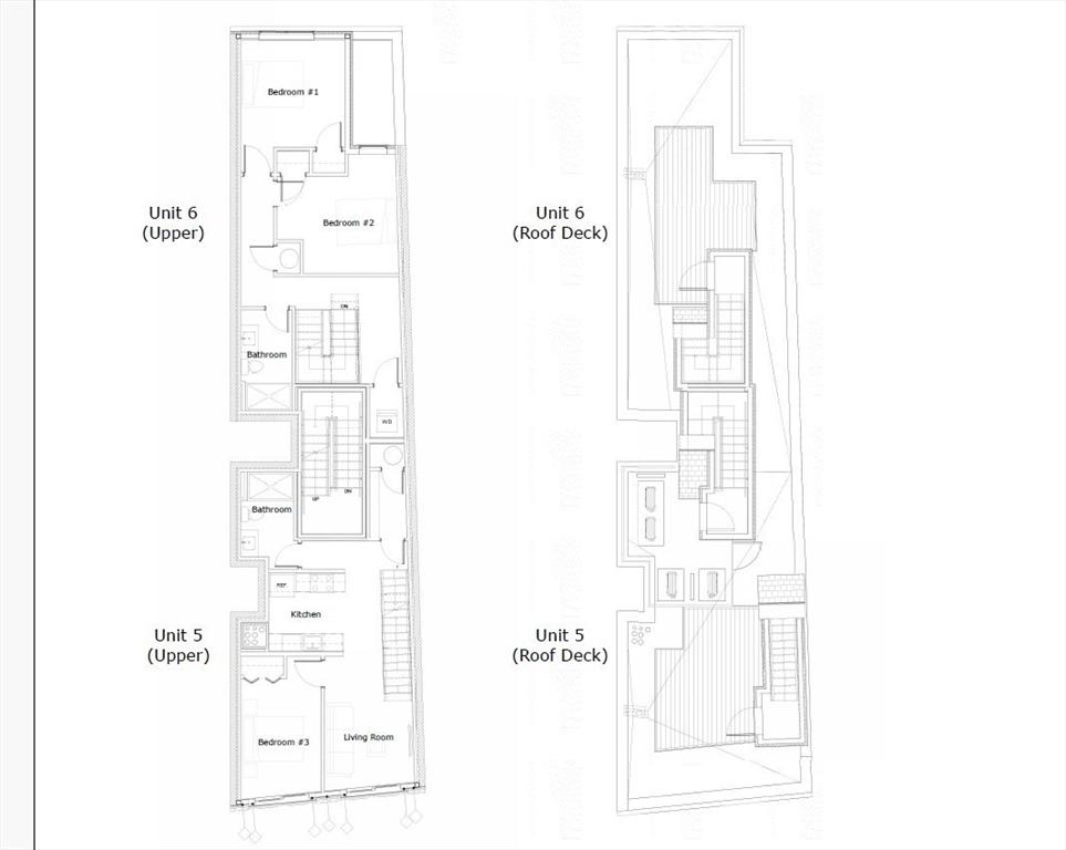
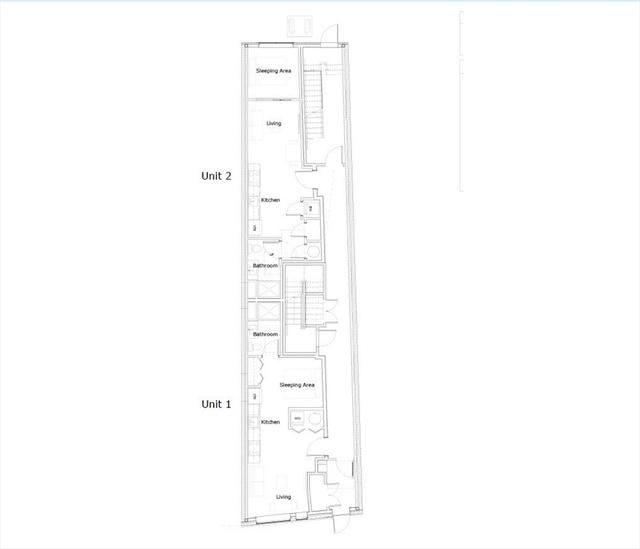
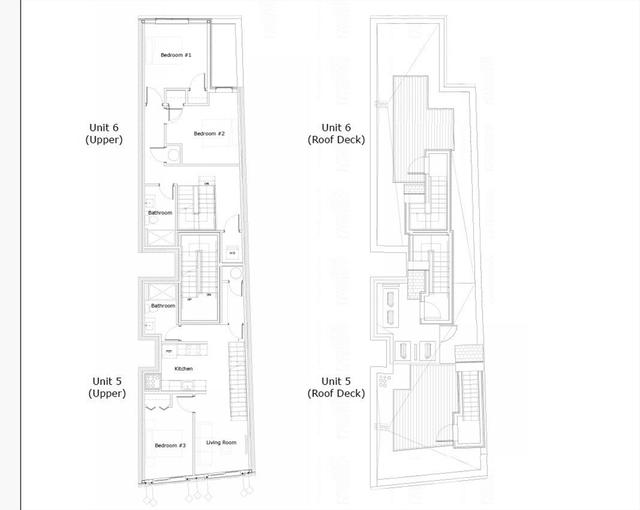
Be the first to live in this spectacular new construction brownstone, offering a luxury feel in the heart of Mission Hill. Just steps away from many foodie spots, convenience stores, and the MBTA Orange Line. This particular unit is a 1bed,1bath featuring a brand new kitchen with stainless steel appliances, in-unit washer and dryer, floor to ceiling windows, and hardwood floors. Security deposit is required and can only be negotiated on a case-by-case basis. Dogs are allowed on a case-by case basis for an additional $200/month and cats are allowed for an additional $150/month. Tenants will be responsible for all utilities including but not limited to water and sewer payments. Still months away from completion, please refer to progress photos and floor plans.

Amenities

Laundry

Ask of Landlord

Air Conditioning

No

Water Front

No

Unit Features

Pet Friendly

Community Features

Ask of Landlord

How AFlat Works

1

Select Your Ideal house

Dive into our curated listings to pinpoint your perfect match. Our diverse selection caters to all preferences and lifestyles.

2

Initiate Your Application

Our digital application process is a breeze. Conveniently upload your documents remotely and jumpstart your path to approval.

3

Verification & Approval

Quickly validate your credential with our streamlined document review. We're committed to moving your through the process with ease.

4

Digitally Sign & Pay

Secure your new lease with a digital signature and take care of any initial payments through our safe online portal.

5

Effortless Move-in

Settle into your new space with peace of mind. We're here to assist every step of the way-just reach out!

Rent Calculator

Rental Cost

$3800

Security Deposit

$0

Move In Cost

$3800

Property Details (Fees & Lease)

Lease Options

Rental Terms

Ask of Landlord

Term of Rental

12

Date Available

07/01/2026

Move in Fees

First Month Rent

Yes

Last Month Rent

Yes

Brokers Fee

$ 0

Security Deposit

$ 0

Other Fee

$ 0

Move in Requirements

References Required

No

Renters Insurance

No

Income to Rent

Ask of Landlord

Background Check

Not Required

Rent Fee Includes

Other

Pet Policies

Pets Allowed

Yes with Restrictions

Pet Deposit

$ 0

Parking

Type

Ask of Landlord

Parking Fee

$ 0

Storage

Available

Ask of Landlord

Storage Fee

$ 0

Building and Construction

Floor

2

Total Square Feet Living

535

Lead free Paint

No

Ratings

0/100

Walker's Paradise

0 /100

Walk Score®

0/100

Some Transit

0 /100

Transit Score®

0/100

Biker's Paradise

0 /100

Bike Score®

Agent/Office Information

flatworth001
View Profile

Apartment for rent

1 bd

1 ba

Rent price from

$3,800 / month

Rental Cost

$3,800

Security Deposit

$0

Move In Cost

$3,800