Logo
Logo

51 Moore Rd New Braintree, MA 01531

$2,250 /month

Overview

Bedroom

3

Bathroom

1.5

Type

Apartment

Parking

Ask of Landlord

Pets Allowed

No

Furniture

Ask of Landlord

Date Available

08/01/2025

Floor

1

Lease Option

Ask of Landlord

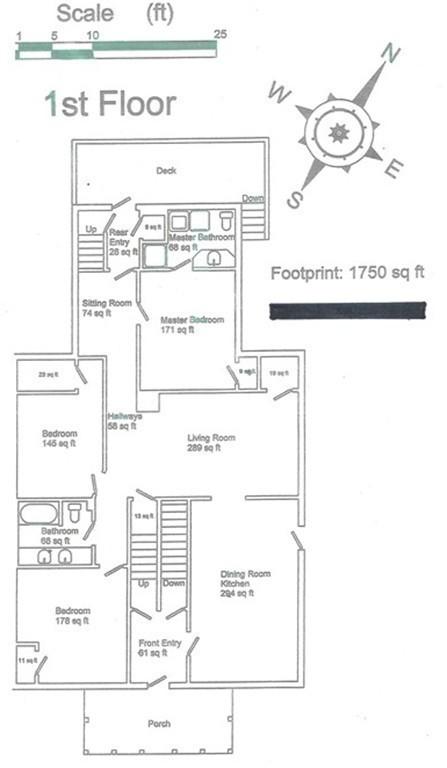
Gorgeous and spacious 1st fl apartment. 3 bedrooms, 1 3/4 bath colonial farmhouse with modern updates! This spacious apartment was gutted to the exterior studs & completely remodeled. Fully insulated, all new windows, roof, hot water baseboard heating, plumbing, septic, & electrical. Vinyl plank floors throughout the entire house look beautiful & are a breeze to clean. The huge eat-in kitchen is fully applianced & outfitted with a stove, refrigerator, & dishwasher. Granite countertops, hickory cabinets, & recessed lighting make this kitchen sleek. The master suite is spacious and it has an adjoining master bath with washer & dryer hookups. The full bathroom has Quartz countertops & double bowl sinks. You'll enjoy the peaceful deck facing a large backyard with nice breezes. Great to sit on the deck and just enjoy your morning coffee, not to mention the exceptional rural N.E. views. 17 miles to Worcester. Call now!

Amenities

Laundry

In Unit

Air Conditioning

No

Water Front

No

Unit Features

Range

Community Features

Porch
Deck

How AFlat Works

1

Select Your Ideal house

Dive into our curated listings to pinpoint your perfect match. Our diverse selection caters to all preferences and lifestyles.

2

Initiate Your Application

Our digital application process is a breeze. Conveniently upload your documents remotely and jumpstart your path to approval.

3

Verification & Approval

Quickly validate your credential with our streamlined document review. We're committed to moving your through the process with ease.

4

Digitally Sign & Pay

Secure your new lease with a digital signature and take care of any initial payments through our safe online portal.

5

Effortless Move-in

Settle into your new space with peace of mind. We're here to assist every step of the way-just reach out!

Rent Calculator

Rental Cost

$2250

Security Deposit

$0

Move In Cost

$2250

Property Details (Fees & Lease)

Lease Options

Rental Terms

Ask of Landlord

Term of Rental

12

Date Available

08/01/2025

Move in Fees

First Month Rent

Yes

Last Month Rent

Yes

Brokers Fee

$ 0

Security Deposit

$ 0

Other Fee

$ 0

Move in Requirements

References Required

No

Renters Insurance

No

Income to Rent

Ask of Landlord

Background Check

Not Required

Rent Fee Includes

Water

Sewer

Trash Collection

Snow Removal

Gardener

Occupancy Only

Pet Policies

Pets Allowed

No

Parking

Type

Ask of Landlord

Parking Fee

$ 0

Storage

Available

Ask of Landlord

Storage Fee

$ 0

Building and Construction

Floor

1

Total Square Feet Living

1750

Lead free Paint

No

Ratings

0/100

Walker's Paradise

0 /100

Walk Score®

0/100

Some Transit

0 /100

Transit Score®

0/100

Biker's Paradise

0 /100

Bike Score®

Agent/Office Information

flatworth001
View Profile

Apartment for rent

3 bd

1.5 ba

Rent price from

$2,250 / month

Rental Cost

$2,250

Security Deposit

$0

Move In Cost

$2,250